Ferienhaus in Werder/Havel

Rundgang

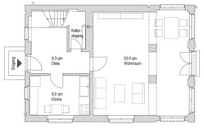
Starten Sie Ihren Rundgang mit einem Blick auf den Grundriss

Sie betreten das Haus über den Flur im Erdgeschoss. Von hier aus gelangen Sie in die Küche und das Wohnzimmer. Über eine Terrassentür im Wohnzimmer erreichen sie den Garten.

Ebenfalls vom Flur aus führt Sie eine geschwungene Treppe in den ersten Stock des Hauses.

Klick zum vergrössern

Klick zum vergrössern

Im Obergeschoss angekommen betreten Sie entweder das Badezimmer, das Kinder- oder das geräumige Schlafzimmer. Alle Räume sind durch den zentralen, kleinen Flur miteinander verbunden.

Ein Besonderheit bildet der, an das Schlafzimmer angrenzende grosse sonnige Balkon.

Klicken Sie auf den jeweiligen Grundriss um die Darstellung zu vergrössern


Auf den folgenden Seiten, können Sie Ihren Rundgang fortsetzen

und ein detailliertes Bild der einzelnen Räume gewinnen. Vorab sei erwähnt, dass das Haus ganzjährig nutzbar ist. Ein Kinderstuhl, ein Kinder-Reisebett, sowie Gartenmöbel und ein Grill gehören zur Ausstattung des Hauses.
Gegen einen kleinen Aufpreis stellen wir Ihnen gerne Bettwäsche und Handtücher zur Verfügung.

Klick zum vergrössern

Weiter zur nächsten Seite >>






 Sentastr. 22, 14542 Werder